- Woonoppervlakte
- Circa 149 m²
- Perceeloppervlakte
- Circa 197 m²
- Bouwjaar
- Gebouwd in 1994
- Aantal kamers
- 6 kamers (5 slaapkamers)
Dat vindt u in deze ruime, zeer goed onderhouden 6-kamerwoning uit 1994 met een mooie voor- en achtertuin.
De woning grenst aan het park, een rozenberg met de winkelcentra Rokkeveen en de Vlieger in de buurt. In de wijk treft u verschillende speeltuinen aan. U kunt volop genieten van de wandel- en fietspaden in het park, een wandeling om de grote vijver. Op een kleine afstand loopt/fietst u naar de "Groenzoom" richting Pijnacker, Berkel en Rodenrijs. Deze gunstige ligging maakt uw woongenot compleet.
Voor meer info kijk op Natuursteenlaan103.nl
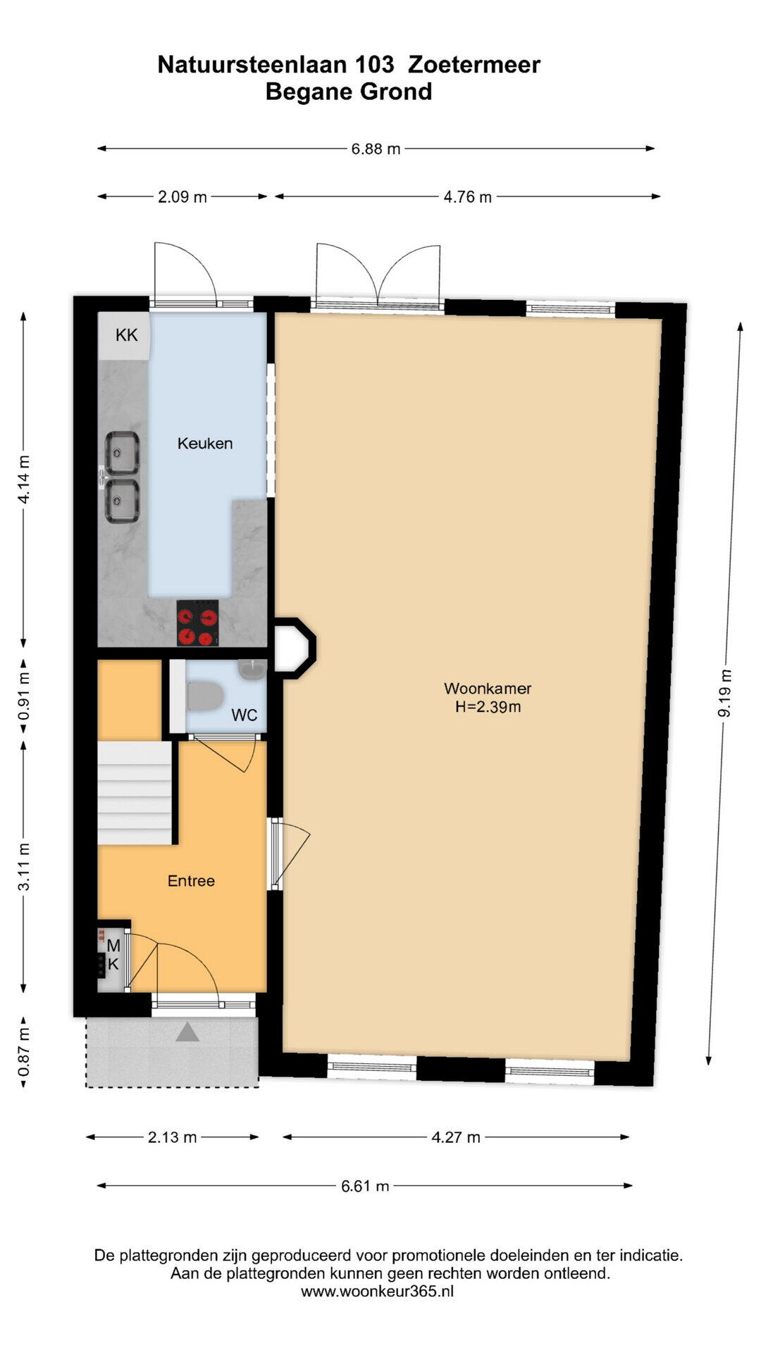
Indeling:
Begane grond:
Via de goed onderhouden voortuin loopt u naar de overdekte entree. De hal van de woning biedt toegang tot de woonkamer, het toilet, de meterkast, een voorraadkast onder de trap en de trap naar de eerste verdieping. De ruime woonkamer heeft openslaande deuren naar de achtertuin op het zuidwesten, een houthaard en een parketvloer. Alle ramen en de openslaande deuren zijn voorzien van 3 dubbelglas en shutters.
De open sfeervolle keuken vormt een mooi en vanzelfsprekend onderdeel van de woonkamer.
Met een ruim werkblad van Vietnamese blauwsteen, een smeg gasfornuis 90 cm met 5 kookzones, een Bosch Silence plus vaatwasser, een Liebherr premium koel-/vriescombinatie, een magnetron en een Quooker is de keuken van alle gemakken voorzien.
1ste Verdieping:
Hier bevinden zich 4 slaapkamers, een ruime badkamer en een apart toilet, gesitueerd vanuit de ruime hal.
De badkamer beschikt over een dubbele wastafel, een bad en een douchecabine. Op deze verdieping ligt een parketvloer.
2de Verdieping:
Hier bevinden zich een overloop met wasmachine en droger aansluiting, de CV ketel, badgeizer, een luik met daarachter een zeer ruime bergruimte en de deur tot de ruime 5de slaapkamer/ studio met 6 ramen. Ook daar bevindt zich een luik met een hele ruime berging.
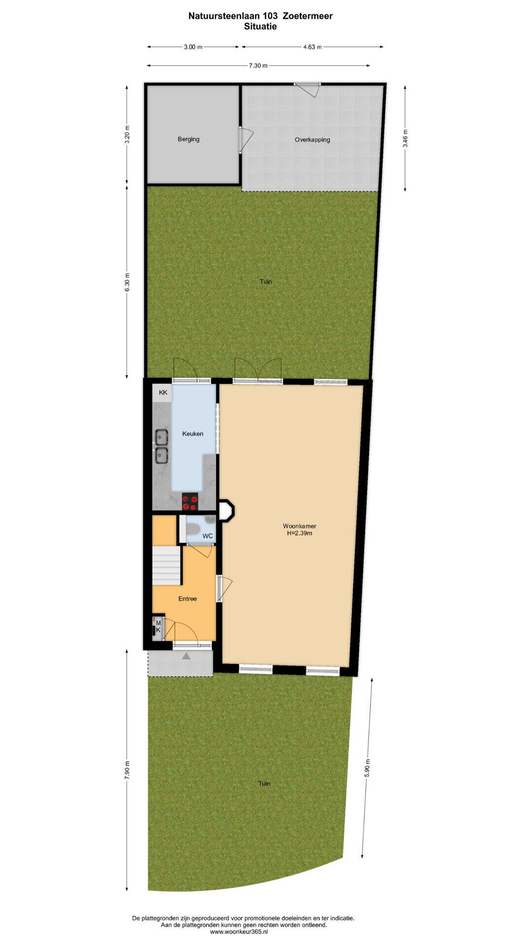
De achtertuin:
Aan het einde van de achtertuin staat de stenen berging. Aan deze schuur is een fijne overkapping geplaatst.
De tuin is met een oppervlakte van 121 m² voorzien van 2 terrassen en veel groen.
De voortuin met zeer ruime uitzicht op het Burgermeester Hoekstrapark heeft een gezellige vijver.
Wetenswaardigheden:
- Bouwjaar: 1994;
- Woonoppervlakte: 149 m²;
- Perceeloppervlakte: 197 m²;
- Energielabel A+;
- Intergas HR CV ketel (2021);
- Zeer aangename luchtverwarming met stofafzuigsysteem (gunstig voor Carapatiënten), voordeel: Geen radiatoren;
- 10 zonnepanelen à 300 Wp;
- Glasvezel aansluiting;
- Ankerloze spouwmuren, vloeren liggen los van elkaar;
- Alle ramen en deuren voorzien van Weru kunststof kozijnen en deuren, 3 dubbele beglazing;
- Achtergevel zuidwestkant met zonnescherm;
- Alle verdiepingen voorzien van parketvloeren;
- Woning is nabij sportcomplexen en basisscholen;
- Mooi uitzicht over Burgemeester Hoekstrapark;
- Oplevering in overleg. Kan spoedig.
Interesse in deze woning? Schakel direct uw eigen NVM-aankoopmakelaar in.
Uw NVM-aankoopmakelaar komt op voor uw belang en bespaart u veel tijd, geld en zorgen.
Adressen van collega NVM-aankoopmakelaars in Zoetermeer vindt u op Funda.nl.
Deze informatie is door ons met de nodige zorgvuldigheid samengesteld. Onzerzijds wordt echter geen enkele aansprakelijkheid aanvaard voor enige onvolledigheid, onjuistheid of anderszins, dan wel de gevolgen daarvan. Alle opgegeven maten en oppervlakten zijn indicatief.
Koopovereenkomst pas rechtsgeldig na ondertekening:
Een mondelinge overeenstemming tussen de particuliere verkoper en de particuliere koper is niet rechtsgeldig. Met andere woorden: er is geen koop. Er is pas sprake van een rechtsgeldige koop als de particuliere verkoper en de particuliere koper de koopovereenkomst hebben ondertekend.
Dit vloeit voort uit artikel 7:2 Burgerlijk Wetboek. Een bevestiging van de mondelinge overeenstemming per e-mail of een toegestuurd concept van de koopovereenkomst wordt overigens niet gezien als een 'ondertekende koopovereenkomst'.
Overdracht
- Vraagprijs
- € 665.000 k.k.
- Status
- Verkocht onder voorbehoud
- Aanvaarding
- In overleg
Bouw
- Object type
- Eengezinswoning, tussenwoning
- Soort bouw
- Bestaande bouw
- Bouwjaar
- 1994
- Soort dak
- Samengesteld dak
Oppervlakte en inhoud
- Woonoppervlakte
- 149 m²
- Perceeloppervlakte
- 197 m²
- Inhoud
- 466 m³
- Externe bergruimte
- 10 m²
- Gebouwgeb. buitenruimte
- 2 m²
Indeling
- Aantal kamers
- 6 kamers (5 slaapkamers)
- Aantal badkamers
- 1 badkamer
- Badkamervoorzieningen
- Ligbad, douche, dubbele wastafel, wastafelmeubel
- Aantal woonlagen
- 3 woonlagen
- Voorzieningen
- Mechanische ventilatie, glasvezel kabel, zonnepanelen
Energie
- Energielabel
- A
- Energielabel registratie
- 26-09-2025
- Isolatie
- Dakisolatie, muurisolatie, vloerisolatie, volledig geïsoleerd, hr glas
- Verwarming
- Hete lucht verwarming
- Warm water
- Cv-ketel
Buitenruimte
- Ligging
- Aan bosrand, aan park, aan rustige weg, in woonwijk, vrij uitzicht
- Tuin
- Achtertuin, voortuin
- Afmetingen achtertuin
- 69 m² (9.5 meter diep en 7.3 meter breed)
- ligging tuin
- Gelegen op het zuidwesten en bereikbaar via achterom
Bergruimte
- Schuur / berging
- Vrijstaand steen
- Voorzieningen
- Voorzien van elektra
Garage
- Soort garage
- Geen garage
Parkeergelegenheid
- Soort parkeergelegenheid
- Openbaar parkeren
Energieverbruik in Zoetermeer
Energielabel deze woning
Energielabel A
Publicatie energielabel: 26-09-2025
Stroomverbruik per jaar
(Gemiddelde tussenwoning in Zoetermeer)
Gasverbruik per jaar
(Gemiddelde tussenwoning in Zoetermeer)
* Cijfers zijn afkomstig van het CBS en bedoeld als indicatie en kunnen verschillen voor deze woning
Indicatie hypotheeklasten
Eigen inleg:
Spaargeld / overwaarde
Rente:
Laagste 10-jaars rente
Laagste 10-jaars rente
2,78% - Centraal Beheer Groen... - NHG
3,04% - Centraal Beheer Groen... - 80%
Laagste 20-jaars rente
3,29% - Centraal Beheer Groen... - NHG
3,52% - Centraal Beheer Groen... - 80%
Laagste 30-jaars rente
3,41% - Centraal Beheer Groen... - NHG
3,7% - Argenta Groen Hypotheek... - 80%
Hypotheek:
Bruto maandlasten: € 0 p/m
Netto maandlasten: € 0 p/m
Hoe berekenen we dit?
Het rentepercentage is gebaseerd op de laagste 10 jaars vaste rente voor één hypotheekdeel. De vermelde rente (3.04% zonder NHG) is gecontroleerd op 27-02-2026. Deze berekening is gebaseerd op een annuïteitenhypotheek die volledig wordt afgelost, waarbij de maandlasten gedurende de gehele looptijd gelijk blijven. De werkelijke rente en netto maandlasten kunnen variëren, afhankelijk van uw persoonlijke situatie en de hypotheekverstrekker. Raadpleeg een financieel adviseur voor een nauwkeurige berekening en advies. Aan deze berekening kunnen geen rechten worden ontleend; het dient enkel als indicatie.
Documentatie
Kadastrale kaart
Leefomgeving
BAG uittreksel
WOZ waarderapport
Brochure
Plattegronden PDF
Bezoek onze website
Bezichtiging
Bod uitbrengen
Waardebepaling
Zoekopdracht
Alles downloaden
Zonnegrenzen bekijken
Op de kaart
Inwoners in Zoetermeer
Cijfers voor postcodegebied 2719
- Totaal aantal inwoners
- 11670 inwoners
- Mannen
- 49%
- Vrouwen
- 51%
Inwoners in Zoetermeer
Cijfers voor postcodegebied 2719
- tot 15 jaar
- 13%
- 15 tot 25 jaar
- 12%
- 25 tot 35 jaar
- 18%
- 45 tot 65 jaar
- 35%
- 65 en ouder
- 23%
Huishoudens in Zoetermeer
Cijfers voor postcodegebied 2719
- Eenpersoons zonder kinderen
- 26%
- Meerpersoons zonder kinderen
- 36%
- Huishoudens zonder kinderen
- 62%
Huishoudens in Zoetermeer
Cijfers voor postcodegebied 2719
- Huishoudens met één kind
- 7%
- Huishoudens met meerdere kinderen
- 31%
- Huishoudens met kinderen
- 38%
Woningen in Zoetermeer
Cijfers voor postcodegebied 2719
- Woningen voor 1945
- 1%
- Woningen tussen 1945 en 1965
- 1%
- Woningen tussen 1965 en 1975
- 1%
- Woningen tussen 1975 en 1985
- 1%
- Woningen tussen 1985 en 1995
- 56%
Woningen in Zoetermeer
Cijfers voor postcodegebied 2719
- Woningen tussen 1995 en 2005
- 41%
- Woningen tussen 2005 en 2015
- 1%
- Woningen na 2015
- 2%
- Huurwoningen
- 30%
- Koopwoningen
- 70%
Overige in Zoetermeer
Cijfers voor postcodegebied 2719
- Gemiddelde WOZ waarde
- € 299.000,-
- Personen onder de 65 met uitkering
- 5%
Overige in Zoetermeer
Cijfers voor postcodegebied 2719
- Adressen per km²
- 1677
- Stedelijkheid (schaal 1 op 5)
- 80%
Indien u vragen heeft of u wilt een bezichtiging inplannen, dan kunt u gebruik maken van het formulier hiernaast. Er zal daarna op korte termijn contact met u worden opgenomen.
Willem Dreeslaan 214
2729NJ, Zoetermeer
079 - 203 3059 info@kleurrijkmakelaars.nl www.kleurrijkmakelaars.nlContact opnemen
Kleurrijk NVM Makelaars & Taxateurs Zoetermeer
Bij Kleurrijk NVM Makelaars & Taxateurs staan wij voor u klaar. Bent u op zoek naar een makelaar die altijd bereikbaar is, snel handelt en u begeleidt bij de complexe aspecten van de aan- of verkoop van uw woning? Dan bent u bij ons aan het juiste adres. Met jarenlange ervaring in Zoetermeer, Lansingerland en Rotterdam bieden wij u deskundig advies. Wij verwelkomen u graag op ons hoofdkantoor in Zoetermeer aan de Willem Dreeslaan 214.
Kleurrijk NVM Makelaars & Taxateurs is de juiste keuze als u:
• Op zoek bent naar een specialist in aan- en verkoopbegeleiding;
• Waarde hecht aan laagdrempelige communicatie;
• Een voorkeur heeft voor duidelijke en directe communicatie;
• Belangrijk vindt dat uw makelaar goed naar u luistert;
• Het prettig vindt als uw makelaar flexibel beschikbaar is;
• Altijd direct contact wilt met uw makelaar;
• Een onafhankelijke taxatie wenst van uw woning door een van onze registertaxateurs (NWWI/NRVT).
Passie voor het vak
Vinod Lachmon, Register NVM-makelaar, heeft jarenlange ervaring opgedaan bij diverse grote makelaarskantoren in regio’s zoals Zoetermeer, Rotterdam, Lansingerland en Gouda. Hij beschikt over uitgebreide kennis en een groot netwerk. Vinod onderscheidt zich door zijn betrokkenheid, juridische precisie en de bereidheid om ook na de aan- of verkoop voor zijn klanten klaar te staan.
Nieuwste reviews
-
Natasha Rijnbeek
Een aantal jaar geleden ontmoette ik Vinod voor een taxatie en hij heeft toen een prettige, rustige en deskundige indruk achtergelaten. Toe...
-
Rijnstroom 16
Zowel door de makelaar (Vinod) als mensen op kantoor zijn we zeer vriendelijk als vakkundig behandeld. Hebben zeker ons wensen voldaan. Ston...
-
Dunantstraat 1463
De makelaar heeft goede kennis van zaken en en heeft ons goed begeleid van begin tot eind. Wij zijn tevreden.